| 加入桌面 | 无图版 | 意见反馈 | 手机版
建筑装潢网
服务热线:4000168068
高级搜索 标王直达
 
 
当前位置: 首页 » 资讯 » 热点关注 » 正文

新作 | 天然水泥空心砖 竟然逆袭做“面材”

放大字体  缩小字体 发布日期:2017-05-25  来源:网易设计  作者:李文倩  浏览次数:1797
核心提示: 新作 | 天然水泥空心砖 竟然逆袭做“面材”,柯尚达 新作 水泥空心砖 室内设计
忘记你所学到的,
忘记你所看到的,
忘记你所学的一切来做设计。

——柯尚达

关于设计,

柯尚达说,

将自己当成一张白纸,

回归设计最原始的童真状态。 

 

 

在他近期完成的“欣旺壁纸办公室”作品中,

他就用这种童真状态,

将纯正而天然的水泥空心砖等建材,

不加任何的修饰,

仅通过正反堆叠,

打造出一个柔软又富有层次感的空间。

 

 

 新作 | 天然水泥空心砖 竟然逆袭做“面材”
△大门 木材与水泥砖的碰撞 新作 | 天然水泥空心砖 竟然逆袭做“面材”

△大门入口的选配区
 新作 | 天然水泥空心砖 竟然逆袭做“面材”


 新作 | 天然水泥空心砖 竟然逆袭做“面材”
△强大的储物空间

可能你已经发现,

所有图片都有一个共性,

就是人字形拼接地板随处可见,

运用木材阴阳面的特性,

或深或浅的效果,

营造出视觉的柔和与空间的活泼,

就像整个空间的衬底音乐。

 

 新作 | 天然水泥空心砖 竟然逆袭做“面材”
△一楼大客户部 

桌子上的A字架,

其实是支撑二层钢板的梁柱,

但是,这个“神来之设计”与桌子浑然一体,

毫无违和感。

柯尚达把这种“看不见的设计”称为“设计的无为”

以低调、无声息的姿态进行“看不见的设计”,

是一种教养,

更是至高无上的信仰。

 

 新作 | 天然水泥空心砖 竟然逆袭做“面材”
△电商运营部门
各部门之间没有明确边界线 新作 | 天然水泥空心砖 竟然逆袭做“面材”
△电商运营部门
水泥方砖在隔开空间的同时,
也建立了空间的联系
建材直接用作“面材”
 新作 | 天然水泥空心砖 竟然逆袭做“面材”

将部分区域抬高, 
就形成了
一个天然的“下沉”办公空间,

与其他区域自然“隔离”

这里有6个出入口,

条条大路通往各个部门,

造就顺畅动线。

 

 新作 | 天然水泥空心砖 竟然逆袭做“面材”

△动线图

 新作 | 天然水泥空心砖 竟然逆袭做“面材”
△通往被抬高区域的楼梯,
用水泥砖和木头堆砌而成,
简单又不失美观
 新作 | 天然水泥空心砖 竟然逆袭做“面材”

 新作 | 天然水泥空心砖 竟然逆袭做“面材”

 新作 | 天然水泥空心砖 竟然逆袭做“面材”
“镶嵌”在楼梯中间的橘色、绿色和蓝色沙发
色彩鲜艳跳跃
点燃了整个空间的热情
 新作 | 天然水泥空心砖 竟然逆袭做“面材”
被抬高的区域中间
 新作 | 天然水泥空心砖 竟然逆袭做“面材”
△用半透明玻璃围合

加班的时候,你是否会害怕独自呆在四野茫茫、八面空空的办公室?


设计师的下沉式办公设计,可谓解救了加班一族。电商部的员工常常加班到晚上12点左右,用半透明玻璃围合的专属空间,就像给他们吃了一颗定心丸,心有归属。同时,这样的设计还能隔断视觉、隔开噪音,创造安静的办公环境。起起伏伏的设计,也为整个办公空间增加了趣味性。


 新作 | 天然水泥空心砖 竟然逆袭做“面材”
△原木色增加环境的自然和柔软氛围

 

值得一提的是,抬高区域的设计并没有提高预算,反而为整个办公空间创造了蔚为可观的储藏空间,增加了空间的层次感。将办公桌椅拉出来之后,就可以看到装有轮子的可移动储藏柜,可以放置比较厚重的壁纸手册和壁纸布料。

 

那么问题来了,如何将柜子从抬高区域下拉出来?小编告诉你,没有什么是1根绳子解决不了的问题,如果有,那就是2根。

 

 新作 | 天然水泥空心砖 竟然逆袭做“面材”
△“下沉”办公室旁边的休息区

 新作 | 天然水泥空心砖 竟然逆袭做“面材”

△休息区的吧台 也由朴素简单的建材打造


现在我们聊聊连接一楼二楼的楼梯,用C,H型钢搭出楼梯框架,用火烤后的山形纹松木板镶嵌其中,这样的松木漂亮又有质感,但美的东西常让人忧伤,因为它很容易被上上下下楼梯的鞋底磨损。

 

然而,在设计师看来,这世界上还有一种独特的美,就是“侘寂之美”,这种残缺之美包括不恒久的、不圆满的,或者朴素、寂静、谦逊、自然等的状态,一切都会变老变旧,但是有些事物选择庄严而又优雅地面对老去。被磨损的松木楼梯,周身散发着“侘寂之美”,给空间一些柔软和温度,也在刻画着时间的痕迹。


 

 新作 | 天然水泥空心砖 竟然逆袭做“面材”

△小门入口 和通往被抬高区域和二层的楼梯 

 新作 | 天然水泥空心砖 竟然逆袭做“面材”

△钢铁与木的交相辉映

 新作 | 天然水泥空心砖 竟然逆袭做“面材”

△绿植处处有

为整个空间增添勃勃生机

 新作 | 天然水泥空心砖 竟然逆袭做“面材”

△空间柔软又富有层次

 新作 | 天然水泥空心砖 竟然逆袭做“面材”

△朴素自然而真诚

 

“人与空间的温度”,是设计师最后想留下的空间氛围,让置身其中的人们,来营造,来感受。同时设计师也希望,在柔软的空间氛围里,每个人在心情和视觉上都没有负担,自然而然的享受午后的一抹阳光。

 

>>> 设计师说 :


“朴素自然而真诚”这是我当初最原始的想法。

在这里,水泥、水泥空心砖、原木实木板、C,H形钢及高密度板等材料,作为主要建材的同时,也直接用作“面材”进而表达出材质本身的质感,以及时间在空间中留下的痕迹。

我并非刻意的想去表达所谓“形式上”FORM的东西;不需太多哗众取宠的炫技,不需要取巧的心机,相信关于设计也是应当如此。

同样的,“欣旺壁纸”做为一位专业的建材供应商,也将是如此的态度来面对所有的消费大众与广大的设计师群体。

设计是种思维修行。道行越高越是沉静,且是自然而然地由内心表现出来,所以才能历久弥坚而经久不衰。


>>> 项目简介 :

 

项目名称:上海欣旺壁纸办公室

项目地址:上海市闵行区紫秀路100号(虹桥总部1号)

空间类型:办公室

项目面积:一层650㎡ + 二层200㎡

主要用材:水泥、水泥砖、原木实木板、C和H形钢及密度板等

主设计师:柯尚达

设计时间:2016年 9月

施工时间:2016年10月

施工单位:上海东尼建筑装饰工程公司


 

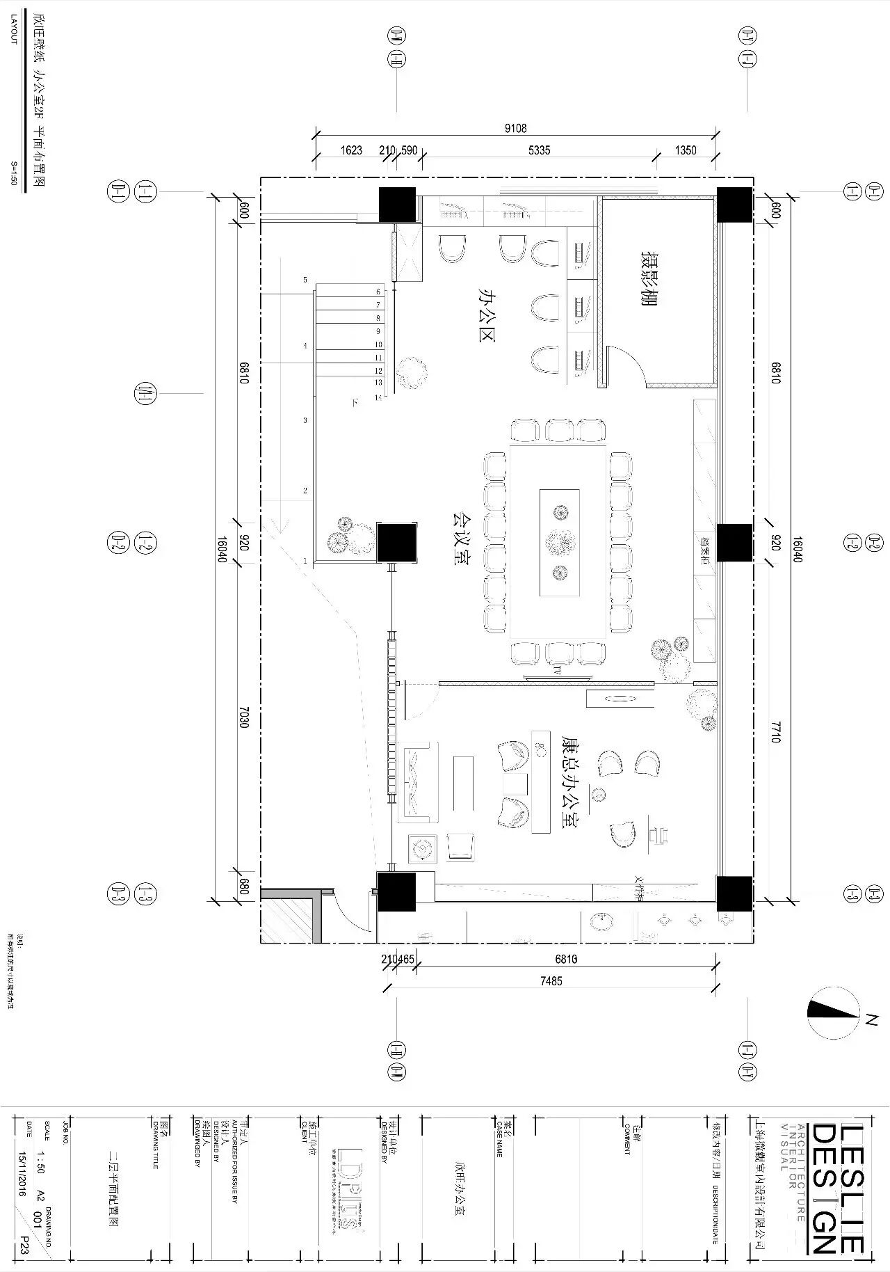
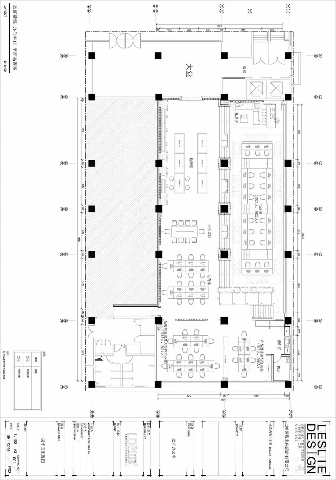
 新作 | 天然水泥空心砖 竟然逆袭做“面材”

△1F平面图

 新作 | 天然水泥空心砖 竟然逆袭做“面材”

△2F平面图

 

>>> 柯尚达简介 :

 新作 | 天然水泥空心砖 竟然逆袭做“面材”

 

 新作 | 天然水泥空心砖 竟然逆袭做“面材”

微观室内装饰设计有限公司 / 总设计师

微观室内设计(上海)创意中心 / 创意总监

台湾室内设计协会 / 会员

 

 

自幼天性乐观进取,对于生活事物起源有着浓厚兴趣?   注重文化根源细节研究;认为”教养””生活””修行”为人本文化的三大要素,同时以「因为生活来源于生活」为设计理念基础;希望本着对于生活进化最单纯的追求,回归人本对于生活最纯粹的生活;同时以现代人文精神为作品创作元素,重新创造未来崭新生活型态;以这样的观念态度服务于业界已逾30年。


作品表现在五星级酒店、购物中心、百货公司、商业品牌专卖店、高级会所、豪宅等项目中。


曾经与(POWER DESGIN)派沃设计合作”大庆世纪唐人中心”项目,荣获中购联中国购物中心行业2015年度(绿色)设计创新奖 、及与(SAM DESGIN)迅美设计合作”海南五指山雨林酒店”项目入围2014年度IDEA-TOPS艾特奖酒店项目;同年年底,该项目荣获ADPC亚太室内设计菁英赛(酒店)银奖。


 
关键词: 建筑装潢
 
[ 资讯搜索 ]  [ ]  [ 告诉好友 ]  [ 打印本文 ]  [ 关闭窗口 ]

 

 
推荐图文
推荐资讯
点击排行

沪公网安备 31012002003756号

©2013 建筑装潢网 All Rights Reserved   (最佳分辨率1024*768,IE6或以上)   
免责声明:本网所展示的供求信息由企业自行提供,内容的真实性、准确性和合法性由发布企业负责。本网对此不承担任何保证责任。
本站中文网址:中国建筑装潢网.com
本站通用网址和无线网址:建筑装潢
服务邮箱:690241594@qq.com   
安卓版APP下载